Kensington OneDomestic Residential — 2013

  • Work in progress

    Private client
  • Work in progress

    Private client

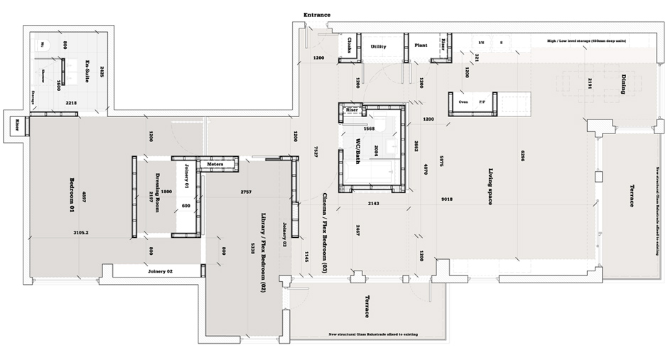
    Maximising flexibility

    A large, luxury apartment in prime Kensington, restricted by it’s cellular internal organization, we looked to insert a series of objects which by their positioning defined areas and with the use of motorized walls were able to maximize flexibility of use and views throughout the property.